探访恒泰入滇匠心首作 恒泰·滇池名门何以受到置业者高度认可
扫描到手机,新闻随时看
扫一扫,用手机看文章
更加方便分享给朋友
[摘要]【搜狐焦点 楼盘评测】恒泰集团是中国房地产百强企业之一,2016年,恒泰集团进驻昆明,恒泰·滇池名门是恒泰入滇首部大作。项目规划有高品质住宅、精品公寓、幼儿园、小学、中学、温泉会所、商业、写字楼等业态。着力打造集居住、餐饮、娱乐、购物、教育、社交、游憩等多功能于一体的复合型大盘。未来,将成为南市宜居新地标。近日,恒泰滇池名门A2地块升级板式新品即将面市。究竟是什么样的匠心产品,能受到当地和外地置业者高度认可?小编实地探访了该项目,将从项目规划、产品设计、配套设施等为大家一一揭晓。
项目整体规划:区域内稀缺板式高层住宅
恒泰·滇池名门占地面积876.23亩,总建面210万平方米,其中商业部分规划26万平米,容积率4.03,建筑密度26.73%,绿地率:38.78%。项目分三期开发,一期规划两个住宅地块,每个地块规划有8栋住宅;二期则规划有住宅和全龄段教学体系;三期则为项目商业部分。

现项目一期A1地块住宅已售罄,预计2018年10月交房入住。而一期A2地块住宅则是在A1地块基础上的全新升级之作,规划有8栋33层板式住宅,两梯六户设计,预计2020年上半年交房。

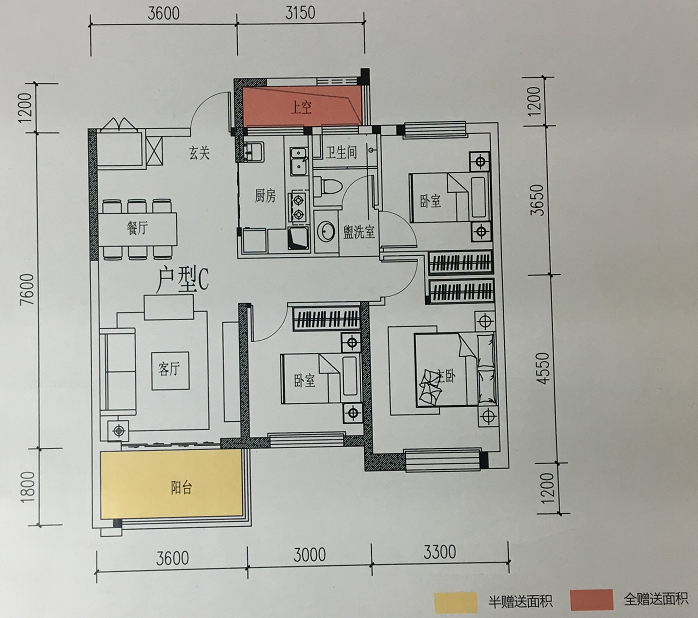
户型:户型方正,布局合理,全明设计
A2地块住宅为板式楼,户型方正,大多朝南向,全明设计理念。现推出四个户型,分别为88㎡(两室)、97㎡(三室)、101㎡(三室)、136㎡(三室)。
136㎡B户型,三房两厅两卫设计,端头房,采光优质,户型方正,通透明亮,布局科学合理,一体式厨房,不浪费每一寸空间。


(B户型样板间)
97㎡C户型,温馨三房设计,户型方正,全明采光,超大景观阳台,餐客一体,有效利用空间。


(C户型样板间)
销售动态:88-136㎡板式新品住宅诚意登记中价格待定
恒泰·滇池名门一期A2地块新品住宅即将推出,A2地块首期将推第1、2、3栋住宅,户型建筑面积为88-136㎡,目前诚意登记中,具体开盘时间及价格待定。
交通:紧邻南市较大公交车场,多条公交线路经过
恒泰·滇池名门位于昆明交通主干道前兴路与广福路交叉口,紧邻南市较大公交车场前兴路公交枢纽站,多条线路通往昆明主城区等各个区域。




配套:周边有成熟住宅区但距配套成熟还有一定距离 自身后期商业配套体量大
恒泰·滇池名门周边广福小区、金盾花园、香槟小镇,广福郡,中天融域,光辉城市等多个高档社区早已建成入住,区域具备较高人气。
周边配套:万达广场、沃尔玛、大商汇等已形成了成熟商圈,另外昆明儿童医院、昆明同仁医院分别位于项目地东北角及西南面,昆明市南市区公交枢纽站便坐落于21号地块东北角。

内部配套:幼儿园、超市、儿童游乐场、会所、老年文化中心、运动场地等基础设施,配3000㎡生鲜超市,后期将建成一个26万方商业体,并规划有幼儿园、小学、中学全年龄段教育体系。
周边楼盘对比:区域内稀缺板式住宅 有明显价格优势
恒泰·滇池名门为恒泰入滇首作,位于南市区核心地带,与周边筑友双河湾及新希望观澜汇两个项目比较,有着明显的价格优势,性价比相对较高。

施工进度:恒泰·滇池名门一期A1地块住宅电梯、电信、电缆、网线接口、消防水道等已安装完毕,正进行园区绿化工程。A2地块住宅已建至地上8-10层。




优势:
1、住宅产品设计合理,全明通透,受置业者亲睐
2、紧邻交通主干道,自驾或公交出行均方便
3、周边成熟住宅区围绕,适合人文居住
4、学校、医院等配套设施完善,就学就医便利
劣势:
1、商业配套不够完善
2、开发周期较长,交房时间晚
声明:本文由入驻焦点开放平台的作者撰写,除焦点官方账号外,观点仅代表作者本人,不代表焦点立场。


